N02
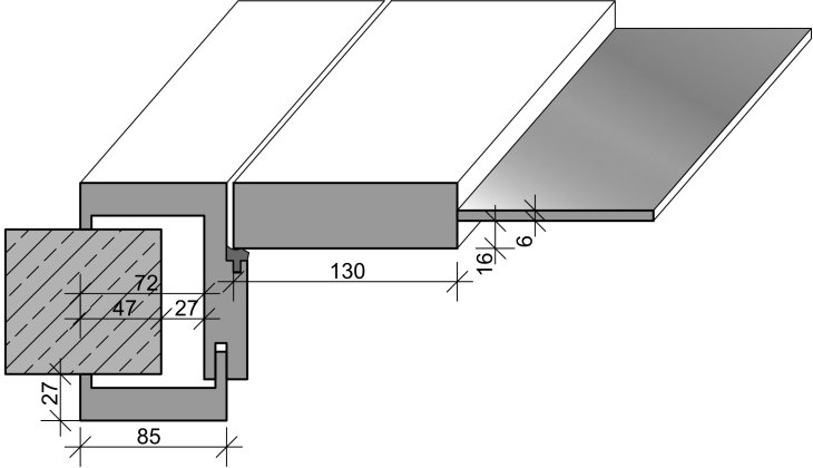
Prezentowany model: skrzydło z wypełnieniem ze szkła bezpiecznego przeźroczystego lub matowego. Ramka schodkowa, szpros niekonstrukcyjny o szerokości 16 mm. Możliwość wykonania drzwi pełnych [zamiast szkła płycina]. Drzwi niedostępne w wersji fornirowanej i ze szkłem fazowanym. Ościeżnica regulowana, pionowe opaski o szerokości 85 mm, górna podwyższona do wymiaru 300 mm.
Zawiasy: widoczne lub ukryte.
Kolorystyka: palety RAL oraz NCS. Kolory podstawowe – RAL 9003, RAL 9016, NCS 0300N, NCS 0500N.
Inne typy wypełnienia skrzydła i modele ościeżnic przedstawiono poniżej.
Prezentowany model: skrzydło z wypełnieniem ze szkła bezpiecznego przeźroczystego lub matowego. Ramka schodkowa, szpros niekonstrukcyjny o szerokości 16 mm. Możliwość wykonania drzwi pełnych [zamiast szkła płycina]. Drzwi niedostępne w wersji fornirowanej i ze szkłem fazowanym. Ościeżnica regulowana, pionowe opaski o szerokości 85 mm, górna podwyższona do wymiaru 300 mm.
Zawiasy: widoczne lub ukryte.
Detale


Typy skrzydeł z linii
Typy ościeżnic
Detale

